Italiano
179.000 €

Negozio in vendita a Varese

Negozio in vendita • Varese (Centro) - Via Orrigoni, 7
Varese centralissimo Via Orrigoni.
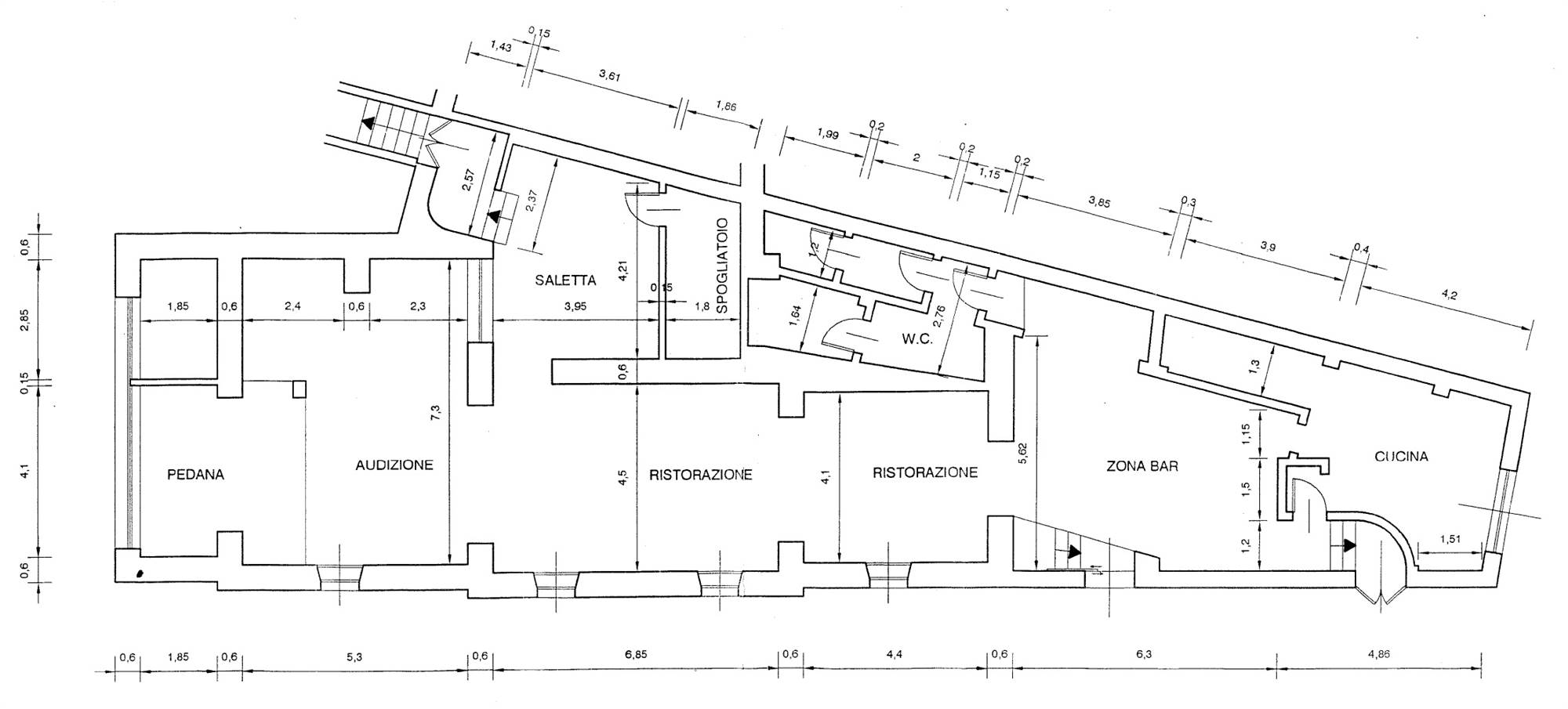
Ampio negozio-ufficio di 260 mq al piano seminterrato, precedentemente adibito a discoteca. Destinazione commerciale, diverse possibilità di utilizzo.
Termoautonomo, libero subito.
Prezzo di sicuro interesse € 179.000-
Caratteristiche principali
Codice
Orrigoni commerciale Terra
Città
Varese (Centro)
Categoria
Negozio
Prezzo
179.000 €
Spese condominiali
1.200 € / anno
Locali
4
Bagni
2
Mq
260
Piano
Terra
Classe energetica
G
315,7 kWh/m³a
Stato Immobile
Come da Origini
Grado
Medio
Lati Liberi
4
Riscaldamento
Autonomo
Tipo Impianto
Aria
Acqua Calda
Autonoma
Mappa
Via Orrigoni 7, Varese (VA)
Condividi su
Cookie preference