Italiano
89.000 €

Rustico/Casale in vendita a Brinzio

Rustico/Casale in vendita • Brinzio - Via Monte Rosa, 1
Brinzio (VA), porzione di casa al rustico, libera su tre lati, con giardino privato di 350 mq circa.
Attualmente censita come come locali di sgombero, necessita di cambio di destinazione d'uso e ristrutturazione globale.

Possibilità di trasformazione, con progetto già realizzato:
P.TERRA: ingresso, locale hobby multiuso con bagno e autorimessa.
P.PRIMO: soggiorno-pranzo, grande cucina, ripostiglio/dispensa, bagno e balcone coperto.
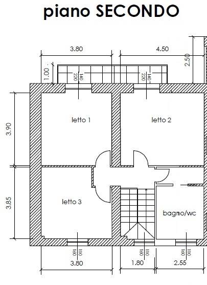
P.SECONDO con travi a vista: zona notte con tre camere, bagno, balcone.

Possibilità di acquisto dell'immobile completamente ristrutturato, in classe energetica A, al prezzo di euro 395.000-
Caratteristiche principali
Codice
Rustico Brinzio A
Città
Brinzio
Categoria
Rustico/Casale
Prezzo
89.000 €
Locali
5
Mq
223
Box
1
Mq Giardino
350
Classe energetica
Non applicabile
Stato Immobile
Rustico
Lati Liberi
3
Giardino
Privato
Riscaldamento
Da Creare

Accessori: Passaggio Automobilistico, Passaggio Pedonale

Mappa
Via Monte Rosa 1, Brinzio (VA)
Condividi su
Cookie preference